咸阳
家装知识 在建工地 咨询热线:029-32093269 咸阳峰光无限装饰工程有限公司 - 讲诚信经营,做行业榜样。

首页 / 

关于企业 / 

行业动态

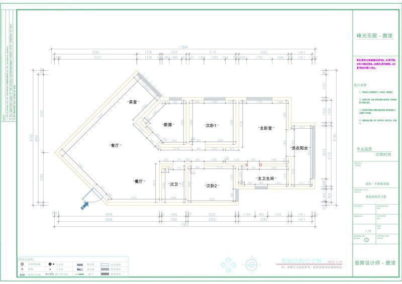
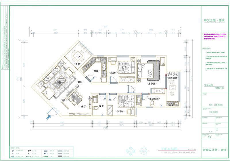
咸阳装修公司提供91平美式乡村两居室案例

  • 日期:2017-05-06
  • 点击:787

咸阳峰光无限装饰工程有限公司装修设计效果图,小区案例为旭光•光明城,户型为两居室,设计师咸阳最好的设计师唐浚,由优秀的金牌施工团队打造,设计风格是美式乡村风格。下面由咸阳装修公司提供91平美式乡村两居室案例欣赏。

咸阳装修公司提供91平美式乡村两居室案例咸阳装修公司提供91平美式乡村两居室案例咸阳装修公司提供91平美式乡村两居室案例咸阳装修公司提供91平美式乡村两居室案例

在线预约尊享贵宾体验

立即预约已预约157

029-32093269 公司地址

陕西省咸阳市世纪大道

关注我们

 免费量房
 免费户型分析
我要预约
已有157人预约
咨询热线:029-32093269