78平的独居小窝,清新却不张扬!
-
日期:2021-06-06
-
点击:48289
峰光无限带你看装修!
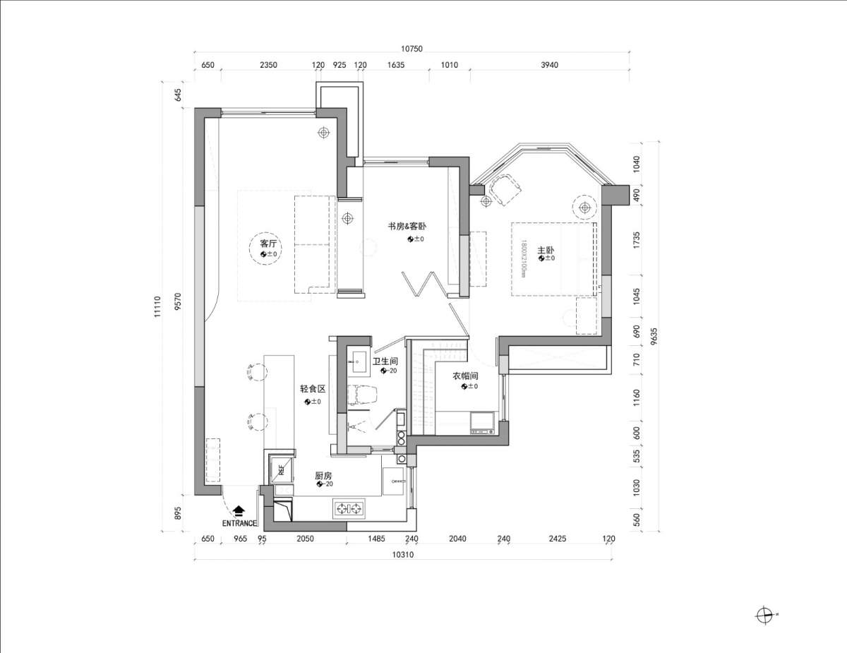
-本案原本为三室一厅,但在布局上十分紧凑,加上很多墙体导致走廊拥挤凌乱。封闭式厨房和杂物间太过压抑。 -业主希望可以有自己的衣帽间和书房,同时可以有泡澡的空间,因为只有女孩独居,所以我们对两个次卧下手啦。 -首先拆除墙体,将阳台并入客厅,增加客厅的开阔尺度,用移动折门将拆掉的次卧改造成书房,百叶窗调节室内采光; -厨房和杂物间打通,再通过岛台餐桌开放出来,形成L型动线; -原本的次卧拆除了墙体并入了主卧,作为衣帽间,从而延长了走廊的长度和纵深感;
-封窗将阳台并入客厅,深咖色的木地板工字铺贴、浅咖色的沙发,配合扎实的编制地毯,让整个空间温馨温暖,配合餐厅岛台的线条,更加有纵深感和开阔的空间体验。用投影设备代替电视,减去电视墙缩小客厅空间而带来的压迫感。一整面的艺术漆除了增加质感纹理外,会更加耐脏耐造,柔和空间光线,避免带来视觉疲劳。
-下置地台和开架,结合承板,满足客厅的轻收纳,选择了暖粉色的沙发凳和皮质书篓,在客厅形成一个休闲的小区域。由小米智能控制的百叶窗、空调,以及极米的投影仪,都可通过小爱音响实现智能调控,适应现代年轻人的生活习惯。
-书房由原本的次卧打通改造,通过定制长桌满足业主办公需求,书房门和面向客厅的窗户都以吊轨的玻璃折叠移门分隔,这样在书房和客厅的人需要互动时可以打开窗户,需要隔音静心办公时就都关起来。界而未界,增加公区的开阔体验。
-甜点咖啡是女业主的烹饪喜好,所以在厨房有限的空间里,在下方定做了嵌入式的烤箱,将餐厅的承板用作陈列收藏的杯具和咖啡酒饮。女业主是个很会生活和开朗的人,将自己到处旅游购来的小物摆件都展示出来,看着会有满满的幸福感。 岛台和餐桌一体化,选用白色大理石的板材,表面具有温润的触感,增加一个开架方便餐桌小物的收纳,简约清爽。餐桌可供四人就餐,满足父母朋友来聚餐的需求。
-洗手台台盆下置,可以减少水溅出,方便台面的清洁。镜柜和下面的柜子作为卫生间的收纳,整洁便捷。提前安装了挂衣架,方便业主泡澡挂衣服浴巾等。虽然没有做三分离,直接安装窄边的浴缸来减少洗澡水流的溅出,卫生间虽小也可以舒舒服服泡澡了~
-走廊延续极简的风格,以一条主动线和书房、厨房各个直线组成,让人拥有流畅的行走体验。卫生间的门使用和周围墙体一样白色的艺术漆,隐形不破坏整体性。原本次卧拆除了墙体并入了主卧,作为衣帽间,进一步延长了走廊的长度。
-以柔和的低饱和度色调为主,搭配床头灯带的浅橘色,空间宁静而温柔。梳妆台选用墨绿色,镜子自带放大的小圆镜方便女孩子化妆的细节处理。靠墙错落的灰蓝色成品柜子主要用来收纳小件衣物和化妆品,以及堆放穿过的衣物。
本案的业主是一个热爱弹琵琶玩音乐的女孩子,在这个78平的独居小窝里,她希望可以是清新却不张扬的风格,同时装下自己对生活的热爱:阅读、电影、咖啡、音乐。设计师梳理空间关系,以黑白灰极简为主调,搭配莫兰迪色软装设计,如同面包店烘焙的香辛料,带给业主轻甜温柔的生活体验。
更多装修设计看峰光无限!
峰光小编—董方雨


