衣帽间、浴缸和壁炉通通拥有,最受女生欢迎的90㎡Chic风家
-
日期:2021-06-04
-
点击:45501
峰光无限带你看设计!
红酒、沙发、壁炉、书架
生活的小确幸
本期案例是女主莉莉和男朋友的第一个家,两人从事IT行业,平时经常加班,很少做饭。莉莉喜欢复古风格,审美也极好,梦想拥有独立衣帽间和浴缸,想要有壁炉围合式的客厅,这个家一一满足~
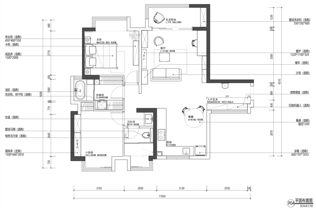
户型图
改造重点:
1,玄关靠窗下面整排储物柜,增加收纳。
2,缩小主卧和次卧空间,隔出独立衣帽间和浴缸区。
3,打通厨房和客厅,餐桌放在厨房,餐厨一体式更方便。
4,客厅以壁炉为中心,沙发围合。对面大长桌,满足在家办工需求,桌旁位置还留给了书柜和黑胶唱片机。
5,主卧用来睡觉,次卧适合瑜伽和冥想。
玄 关
玄关地面花砖,全身镜、换鞋凳和挂衣架等藤编为主,一进家门就能感受到复古休闲的氛围。
客 厅
家中最好看的角落,没有什么比整墙的书更具有装饰性。壁炉为中心的布局,舒适的沙发,让人回到家就很想窝在沙发上。
吊扇灯在夏天很好用,南北通透的家打开窗就有自然风对流。矮书柜台面用来放黑胶唱片机,上面放了9宫格的黑胶唱片。
回到家中,就能被喜欢的书和唱片围绕,会感到很满足吧~
从阳台角度看过去,厨房的窗户做了折叠百叶窗,透光而且隐私性好,装饰性很强。
厨 房
女主工作很忙,很少做饭,对厨房颜值要求很高,由此选了隐形升降分体集成灶,使用时,油烟机会自动升起,也很好的解决了开放式厨房的油烟问题。
每一把餐椅都是女主精挑细选的,具有欧洲建筑装饰靠背的餐椅体现了女主的独特品味。
卧 室
女主人喜欢东南亚度假风格,家具主要以藤编和实木为主,窗帘也选了实木的百叶帘。
床尾放抽屉柜和脏衣篮,非常实用。茂密的迷你椰子让平时忙于工作的女主能有一点度假的氛围。
衣帽间
缩小了一点主卧和次卧的空间,隔出一个独立衣帽间和浴缸区。小小衣帽间储物强大,开放式的设计对衣服很多的女生来说找衣服非常方便。浴缸区不大但也很精致。
次 卧
次卧装了箱体床,平时没有人时收起,做为活动房或者瑜伽房。旁边也有柜子可以存放衣物之类。
卫生间
女主人希望卫浴是以海蓝色为主,在淋浴间贴了蓝色的瓷砖,其他区域贴了白色复古条形砖,入墙水龙头和壁挂岩板一体盆让洗手间显得干净整洁。
更多装修设计看峰光无限!
峰光小编—董方雨


