120多平米的房子,适合什么样的装修设计?
-
日期:2021-04-13
-
点击:34375
峰光无限带你看装修!
很多人喜欢美式的装修风格,面积太小的装了美式会显得拥挤,那么多大才适合美式呢?综合评估120平米以上就比较适合了。
美式装修除了硬装,软装也要煞费苦心,不过美式软装可不便宜,如果预算有限,小编认为简美是比较适合的。而且,要考虑以后会有宝宝,简美装修更符合实际需求。接下来,我们就来看看这套简美装修案例吧!
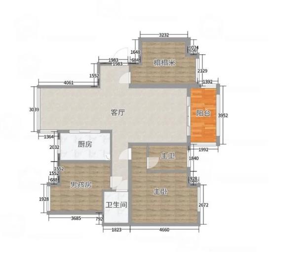
户型图:
入户空间:
为了充分利用了空间,设计师将入户柜与餐边柜进行合并,这样的设计不仅具有整体感,还能让视野更加开阔。而且台面的设计也十分符合人们日常的收纳,使用过程也会更加舒适。
餐厅空间:
餐厅空间除了餐桌和柜子,还增加了水池和冰箱。所以这个空间上升到了享受空间,这与传统设计有所差异,但不失为一种很好的尝试。
客厅空间:
最能体现主人品味的莫过于客厅空间的装修了,很多人认为客厅最重要的是软装,硬装简单即可。其实这样的说法有些片面,硬装就像是一个人的五官,而软装就像是一个的着装,评价一个人长得标致,样貌和衣着都必不可少,而样貌是基础,所以一定要做好硬装的基础,才能让装修更出彩!
添置美式风格的茶几,搭配皮质沙发,这样的软装滤镜简直了~
墙面除了四图组合式装饰画,还有定制了木饰面,这样的搭配非常适合美式风格,还有鹿头是该风格中的经典装饰,给整个客厅空间锦上添花!
卧室空间:
卧室属于私密空间,需要更多的空间存放私密物品。长年累月,新旧物品叠加,东西又多又杂,关键适合还找不到,所以足够的收纳,合理的设计,以及符合个人的习惯都不能缺少。
榻榻米:
榻榻米同样属于私密空间,所以大可以按照自己的喜好进行设计。在这套设计中,柜门采用平板门,没有过多的线条装饰,也省略了拉手,整个空间虽然不大,柜子也定制了很多,但整体感觉却没有逼仄感。
儿童房:

儿童房的设计要考虑他们的成长,所以书桌、书柜的收纳是必不可少的。此外,作为独立成长空间,在这里,孩子肯定会自己的收藏品,所以房间还定制了隔断柜,配以灯光,可以将藏品进行展示,满足在精神上的需求。

厨房:
阳台:
更多装修设计来峰光无限!
峰光小编—董方雨


