咸阳
家装知识 在建工地 咨询热线:029-32093269 咸阳峰光无限装饰工程有限公司 - 讲诚信经营,做行业榜样。

首页 / 

装修百科 / 

装修设计

带浴缸的30平,小户型也得“五脏俱全”

  • 日期:2020-04-10
  • 点击:960


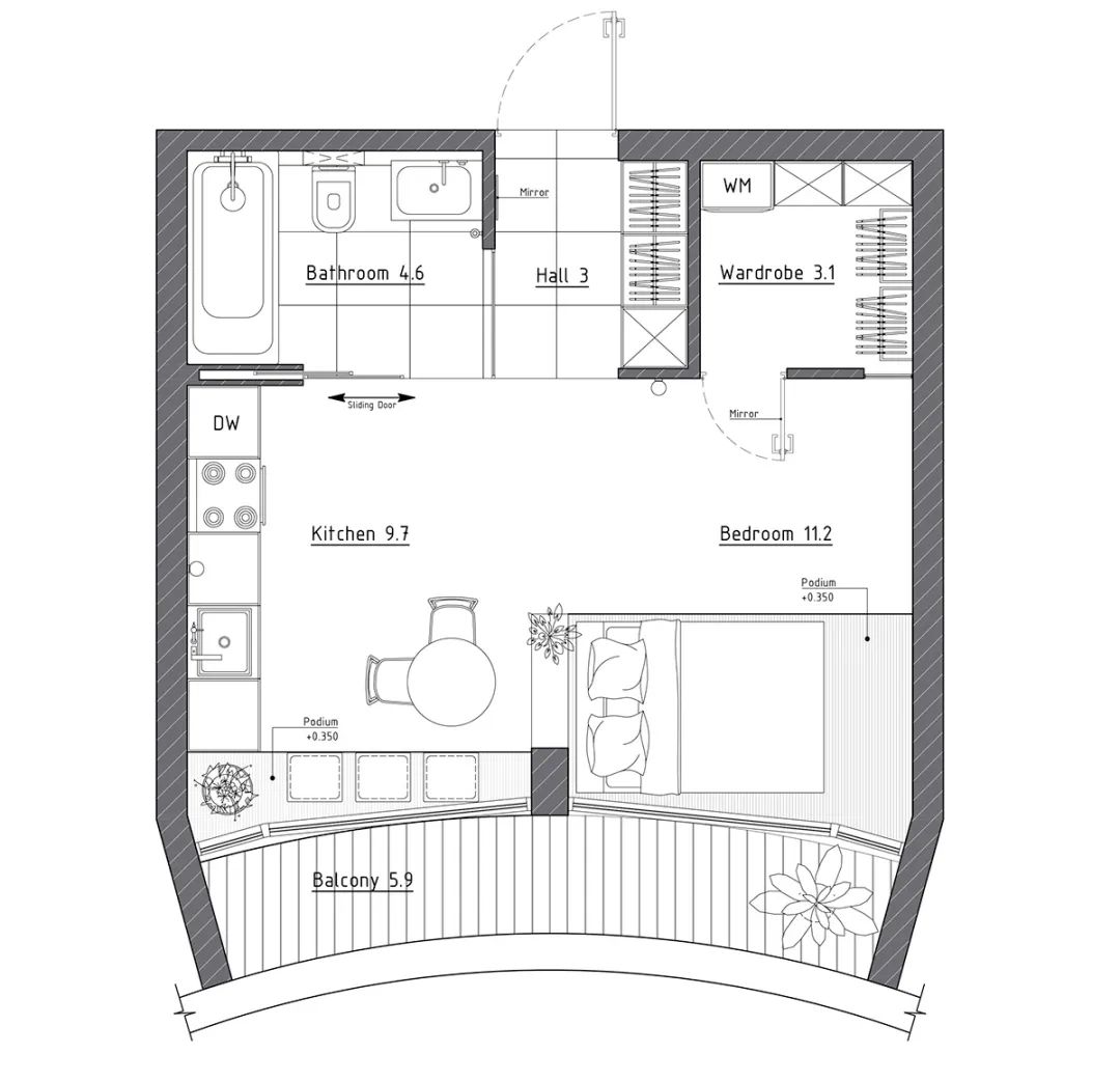
风光无限装饰设计团队新作,这个小户型住宅,面积为29.6㎡,别人家的小户型从来不会让我失望,这么一个小小的空间,卧室、衣帽间、厨房、卫生间,一个不少,还带了浴缸,真是绝了!




平面图


不难发现,这么小的空间,全开放式,客厅餐厅厨房一体,以灰白为主色调,自流平水泥地板,绿色的餐桌非常吸睛,大大的玻璃窗光线充足,显得空间很大。



是客厅也是卧室,设计师用定制榻榻米,床头做成书柜,内部可储存很多杂物,非常方便。



小户型里的收纳设计,衣柜、鞋柜、杂物柜,风光无限设计团队考虑十分周到,远比你想的实用。

文本标签:   风光无限
在线预约尊享贵宾体验

立即预约已预约157

029-32093269 公司地址

陕西省咸阳市世纪大道

关注我们

 免费量房
 免费户型分析
我要预约
已有157人预约
咨询热线:029-32093269