入户花园改玄关
-
日期:2020-03-28
-
点击:799
想知道怎么把入户花园完美利用上吗?咸阳峰光无限来悄悄告诉你
名词释义:
入户花园(rù hù yáng tái)
进了家大门之后,没到客厅之前,冬天会被冻哭的这个空间。
没啥风景好看的入户花园
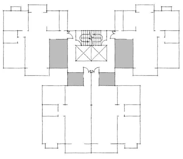
大部分电梯公寓里,所有的户型全部都围绕着电梯间。
靠近大楼中心的部分因为贴得太近,开窗就能和隔壁老王干瞪眼,采光和通风更加好不到哪去。
而插入了一个入户花园在中间作为衔接,相当于把整个屋子从电梯间“推”远了。
没有入户花园:每户进门都有长走廊,而且都有一间采光不好的屋子
有入户花园:整户都被往外“推”了,户型合理了很多
利用原本只能看别人家屁股的位置,修正了户型,甚至可以避免进门长走廊的尴尬。
另外一个作用则是让大楼的形状有了更多的变化,即使是2梯6户,每一户都能有3面采光通风。
一直背负“鸡肋”骂名的入户花园,是不是其实很有用?
用入户花园修正开门方向,优化了户型结构
2梯5户,因为入户花园而每户都有3面通风,采光更好
除开高端户型和小部分中端户型(本身户型就很好,入户花园属于锦上添花),大部分的入户花园都是开在景观最差的那一面,不是大白墙、邻居窗户就是一线天,有什么好看的呀。
说的好听叫“花园”
其实就是门厅3.0
八九十年代叫门厅,千禧年后叫玄关,10年代就改叫入户花园了。
其实就是为了偷面积。
因此,与其考虑什么花花草草假山流水,不如先从功能入手,看看怎么好好利用好这个先天优势非常明显的“豪华版玄关”吧。
从这个角度(以及冬季回家冷成狗的蛋疼体验)说,强烈建议把入户花园用窗户封起来。
我们总结了多种户型,发现入户花园的户型万变不离其宗,其实也就这几种:
一字型:
入户门正对客厅门(不规则的入户花园里,两个门会偏一些,不会正对),可能没有太多空间布置遮挡视线的玄关,但可利用面积最大。
L型:
入户门正对窗户,采光最好,同时空间利用率也很高。
S型:
入户门和客厅门45°角正对,需要横穿过整个入户花园,如果空间不大的话,很难施展开来。
满足最基本功能玄关
适合:小L型、小S型
因为空间比较窄,所以能满足的功能不多,但是作为一个玄关,鞋子的收纳是玄关的第一要务。
下图左边就是好看但是然并卵的例子,右边才是刚刚满足收纳的门厅(虽然容量还是比较小)。
鞋柜的深度350mm~400mm就足够,门边位置的墙角也许包个小一些的门套就能塞进去了。
空间太小的话,1米高的矮柜能比较好地平衡储物和空间,沿着窗户下部做也不影响采光。
收纳数量一定得足,
空间足够,可以继续往下:
带衣橱的玄关柜
适合:一字型、稍大的L型和S型
西方电影里,大门旁边的衣橱一定让你印象深刻。
尤其是冬天,有了这个衣橱出门时顺手披上一件大衣,不但方便,而且不会把室外的灰尘带回家。
只要入户花园大那么一点点,你也可以有这么一个门边放大衣的衣橱。
不过这里就存在一个问题了:
鞋柜的深度通常是400mm,而衣柜的最小深度是550mm,男士的大衣放进去了还有可能会被柜门夹到袖子。
正着放不进去,那就侧着好啦。
像服装店里一样,正面向外挂着,很适合家庭成员不多的小家庭。
本身玄关柜里也不会放置太多的外套,也就每个人一件。
宽度足够的话,直接用壁挂钩,外套一件挨着一件,然后关上柜门,衣服不会皱也不会落灰!
不过选择尽量长而粗的挂钩,细挂钩容易把衣服勾坏(衣服太重坠的)。
柜子里除了鞋子和外套,出门才会用到的围巾、帽子、包包、雨伞也应该在大柜子里找到它们各自的位置了。
满足了以上的需求之后,如果还有空间,小小的一张桌子和椅子,满足换鞋和进门放下手里东西的需求。
别忘了安排一个固定放钥匙的地方。
一个麻雀虽小五脏俱全的玄关就这样诞生啦!
不建议直接参照国外,把入户花园封死成一个真正的步入式衣橱。
鉴于我们的户型特点,采光的窗户一定是距离入户门较远的,这样隔断牺牲了玄关区域的自然采光,算是得不偿失。
没有别人那么好的采光,完全分隔的衣橱还是算了吧
客人和家人分开的
玄关2.0
适合:一字形、L形、较大的S形
当入户花园的空间比较充裕时,就可以尝试更高级的动线分离了:
家人走的路线和客人走的可不一样!
家里人进屋后会经过收纳柜,而客人则会直接在换鞋后进入屋子,不会看到门口的杂物。
毕竟像自行车、婴儿车、滑板车并不那么容易收纳到柜子里。
更别提下雨天顺手晾个雨伞了。
除了之前说到的鞋子、外套、雨伞,体育用品、宠物用品、清洁用品、工具箱……
一切不适合放在屋子里的东西都可以收纳在玄关,弄脏了地面也比屋子里好打扫。
不过确实由于国内户型的限制,动线分离的玄关收纳能力并没有单一动线的强。
这样的布置,更适合经常接待客人的家庭。
拿出费心费力装背景墙和大吊顶的钱,换来一个干净整洁的第一印象,才叫真正的“有面子”。
买了菜就能拿到厨房的
玄关3.0
适合:厨房较大且紧贴入户花园
和父母一起住,最棒的就是每天都能吃上新鲜的瓜果蔬菜。
如果条件允许,打通入户花园和厨房,虽然只是省下了几步路,但却是对辛劳的父母最大的照顾。
入户花园基本都紧贴餐厅和厨房,打通家务动线后,做家务会省力很多,尤其是原本的户型厨房需要穿过餐厅时更是如此。
厨房和玄关打通后,还改善了厨房的采光和通风。
原户型
厨房和入户花园打通后的户型以及家务动线
在做菜时能第一时间知道家人回来。
入户花园、厨房、生活阳台统一使用瓷砖地面,和屋子里的木地板分开,更方便清洁。
餐厨起居合并在一起的
超大空间
适合:所有有条件户型
拆掉入户花园、厨房和餐厅之间的墙,可以创造出一个开放的空间。
布局更加自由、采光通风更好,全家人除了睡觉的时间之外,都生活在同一个空间里,彼此能够感觉到对方,这才是真正的温暖的家的气息。
打破了房间的界限后,孩子在客厅玩耍时,家长在厨房就能看到他们的情况。
通透的视觉体验也会显得家里更大更明亮。
并不建议把入户花园
改成房间
买房时,大家都在挑户型,好的户型有一条:动静分区明显。
客厅、餐厅这样的公共区域在前,卧室、书房这样的私人空间在后。
原本入户花园的作用就是修正户型,调整布局和采光。
把入户花园封成房间后,动静不分、长走廊、暗门厅一系列的问题全部都回来了。
相当于把好户型改成了差户型。


